For a better view of the website, update your browser.
Those browsers has new features built to bring you the best of the web.
Explore Menu
  • Grand Cayman
  • Little Cayman
  • Cayman Brac
Districts List
  • West Bay
  • Seven Mile Beach
  • Seven Mile Corridor
  • East Interior
  • George Town
  • South Sound
  • Prospect/Spotts
  • Savannah / Lower Valley
  • Bodden Town / Breakers
  • East End / High Rock
  • North East Coast / Colliers
  • North Side
  • Rum Point
  • Midland East
  • Duck Pond
  • Cayman Brac West
  • Cayman Brac East
  • Cayman Brac Centre
  • Little Cayman West
  • Little Cayman East
$
$
$
$
Reset
MLS#: 419859

Oceans 9 Villa 7 West Bay Luxury Beachview Detached Home

West Bay, Grand Cayman
US$2,800,000
Type: Residential
  • 4
    BED
  • 4.5
    BATH
  • 3,401
    SQ FT
  • 2025
    YEAR BUILT
  • 0.26
    ACRES
46 people viewed this property since last week.

Property Information

Experience the ultimate in resort-style living with this rare beach view detached villa in the exclusive, gated Oceans 9 community—offering privacy, luxury, and effortless island living without the high resort fees.

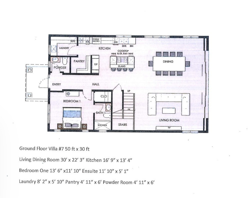
The open-concept ground floor features a bright, spacious living area flowing seamlessly into a chef’s kitchen with custom cabinetry and premium Kitchen Aid appliances, including dual wine coolers, ice maker, dishwasher,  5 burner propane cooktop and double wall ovens with warming drawer. There is a walk-in pantry with custom shelving and a dedicated laundry room with LG washer/dryer, sink, folding area and custom cabinets adding both functionality and convenience.

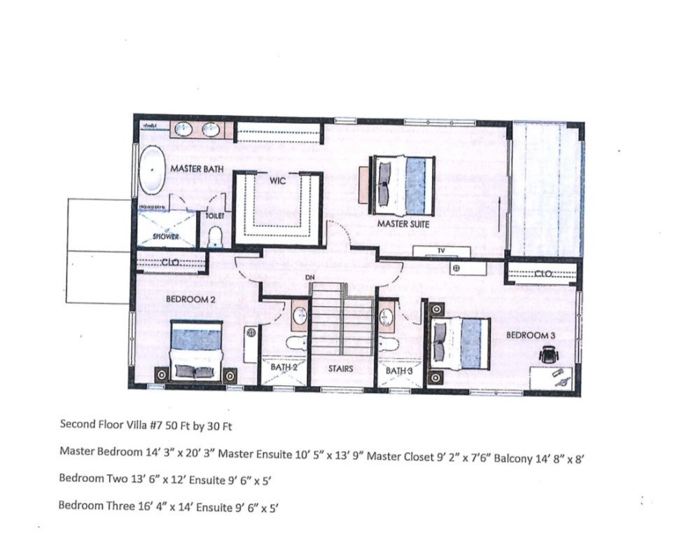
On the second floor the primary suite offers a spa-inspired bathroom with freestanding soaking tub and a glass enclosed shower with 3 shower heads.  The expansive walk-in closet includes a wall of display shelving.  The primary suite opens to a private balcony overlooking the pool with ocean views. Two additional king sized bedrooms each feature private en-suites and custom cabinetry. 

The generous main floor fourth bedroom features an ensuite and built-in closets  providing flexibility—ideal for guests, grandparents, or as a media room. 

Enjoy all the independence of a standalone home with the ease and security of a professionally managed, gated community featuring two resort-style swimming pools, a meandering lazy river and direct access to a long, pristine beach. The 2.3 acres of lush landscaping is home to only nine villas. 

This newly constructed 3,401 sq. ft. residence sits within a boutique development, thoughtfully designed to capture natural light while the front terrace remains shaded from the afternoon sun. Elevated 13 feet above sea level, it combines safety, serenity, and enduring quality, with solid poured concrete construction, hurricane-rated windows and doors and custom blinds (blackout in all bedrooms). The property also includes a private garage and two additional parking spaces for convenience.

Perfectly positioned just five minutes from the Kimpton Seafire Resort + Spa, Hotel Indigo, and the silver sands of Seven Mile Beach, this home places you near Grand Cayman’s five-star resorts, world-class spas, fine dining, and vibrant entertainment.
Offered unfurnished, with all high-end kitchen and laundry appliances included.

This is a rare opportunity to own a private beach view villa in one of Grand Cayman’s most desirable locations—where every day feels like a luxury vacation.
Excellent rental income, US$15k per month
Tour link: https://my.matterport.com/show/?m=NAfhtktpj2f

Property Details

  • Status: Current
  • View: Ocean View
  • Listing Type: Single Family Home
  • Acres: 0.26
  • Den: No
  • Pool: Yes
  • Foundation: Slab
  • Stories: 2
  • Furnished: No
  • Garage: 1
Know your monthly
mortgage payment estimate

Explore this Property

*Disclaimer: CIREBA uses a conversion rate of KYD 0.82 to US 1.00. It is important to check with your local real estate agent or financial institution as the KYD/USD exchange rate may differ when purchasing real estate in the Cayman Islands.
The information contained herein has been furnished by the owner(s) and or their nominee and represented by them to be accurate. The listing company, agent and CIREBA MLS disclaims any liability or responsibility for any inaccuracies, errors or omissions in the represented information. All the information contained herein is subject to errors, omissions, price changes, prior sale or withdrawal, without notice and is at all times subject to verification by the purchaser(s).

About ENGEL & VOLKERS

Engel & Völkers Cayman Island became the 100th Shoppe in North America in 2016. We are so proud of our successful and dynamic team of 15 Agents in the Cayman real estate market. Having a Professional Real Estate Advisor by your side is a wise decision. Engel & Völkers' efficient team can help make your relocation less stressful. We offer expert guidance for selling, buying, or leasing a commercial space. 

Our professional knowledge of the market and the areas can help you find the perfect home. Selling a home is an emotional process; we are here to guide you through it. Our Full-Time CIREBA-trained Real Estate Advisors have much experience and valuable market knowledge. We have outstanding customer service; we listen to you because we care about you and your family.

We analyze the real estate market and help you make successful decisions with excellent customer service and communication, technology, sales training, personal contacts, and reputable tradespeople. Our Estate Advisors go above and beyond for our clients and customers, and we will help you enjoy Cayman as much as we do.

Learn More
CLEAR LIST